Skip to main content

PROJEKTOVÁNÍ VZDUCHOTECHNIKY

CO UMÍME

PROJEKTY PRŮMYSLOVÉ VZDUCHOTECHNIKY

Vytváříme projekty průmyslové vzduchotechniky, odsávání, chlazení a vytápění budov.
Klademe důraz na možnosti klienta a finanční náročnost celé investice

PROJEKTY REKONSTRUKCÍ

Zpracováváme projekty pro rekonstrukci průmyslové vzduchotechniky.
Dokážeme Vám poradit a zhodnotit stávající stav a navrhnout nové technicky optimální řešení.

PROJEKTY PRO ODSÁVÁNÍ TECHNOLOGIÍ

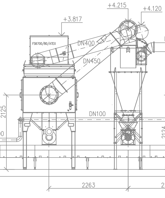
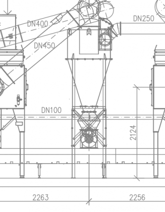
Představíme Vám vhodný projekt pro průmyslové odsávání technologií jako je robotické svařování, tryskání a čištění kovů. Všude tam kde je potřeba odsávat Vám rádi poradíme.

DÁLE NABÍZÍME
  • Studie a návrh odsávacího systému.

  • Dokumentace pro ovládání a řízení odsávacího systému.

  • Dokumentace pro provedení stavby (stavební připravenost).

  • Vizualizace ve 3D.

  • Dokumentace skutečného provedení.

  • Projektová dokumentace.

  • Technická zpráva.

  • Výrobní dokumentace zařízení a podskupin.

CO JE OBSAHEM DOKUMENTACE
  • Definice požadavků klienta a vstupní konzultace, které směřují k přesné specifikaci zadání a rozsahu projektu.

  • Profesionální přístup k řešení a záruka požadované funkčnosti.

  • Optimalizace nákladů a kontrola financí, které poskytnou investorovi konkrétní představu o finanční náročnosti budoucí realizace.

  • Koordinační činnosti v rámci projekčních prací, spolupráce s ostatními profesemi.

  • Vymezení odpovědnosti a garance bezproblémové funkčnosti, která zaručuje vzájemnou kompatibilitu všech částí projektovaného systému.

MÁTE ZÁJEM O KALKULACI PROJEKTU?
  • Tato e-mailová adresa je chráněna před spamboty. Pro její zobrazení musíte mít povolen Javascript.